|
| WK 81860G |
|
 |
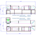
Niedergeschwindigkeits-
windkanal nach Göttinger Bauart mit offener Meßstrecke,
und geschlossener Rückführung.
Düsen mit 180 oder 255 mm Durchmesser,
stufenlose Geschwindigkeitsregelung.
|
|
|
| Merkmale im Überblick: |
|
| Düsenaustrittsdurchmesser: |
180 mm oder 255 mm |
| Meßstreckenlänge effektiv: |
280 mm bzw 320 mm |
| Meßstreckenbreite effektiv: |
140 mm |
| Kontraktionsverhältnis: |
8 bzw. 4 |
| Geschwindigkeit: |
0,1 m/s bis 65 m/s oder 0,1 m/s bis 40 m/s
(50 m Meereshöhe) |
| Turbulenzgrad: |
<0,6 % |
| Anschluß Ventilator: |
400 V |
| Motorleistung: |
4,5 KW |
| Drehzahlabweichung: |
< 0,1% vom angezeigten Messwert |
|
|
| Zubehör: |
|
-spezielles Prandtl-Rohr mit Halterung -Differenzdrucksensor 0 bis 40 mbar -Absolutdrucksensor 0 bis 1600 mbar
-Temperatursensor in der Meßstrecke 0 bis 100°C
-1D-LDA mit automatischer Messpunktansteuerung
-externer Eingang zur Ansteuerung des Ventilators mittels CPU |
 |
|
|
|
|